Manufactured

Legend HUD 518 54LGD28443BH

Built by: Schult Homes

3D Home Tour

No 3d Tour Available

About this Home

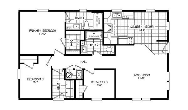
The Legend / 518 54LGD28443BH built by Schult Homes is a beautifully designed home with modern features. The floor plan includes 3 bedrooms, 2 bathrooms, and 1,217 square feet of living space. This home combines convenience and comfort, providing an open layout that’s perfect for family life. The Legend series delivers on both style and functionality.

Share this home

Details

  • 3 Bedrooms
  • 2.00 Bathrooms
  • 1217 Square Feet
  • 28’0″ x 44’0″

PHotos

Tours & Videos

Specifications

No specification data available
Translate »